Coming Soon MLS# 26024694

2051 Goodale Avenue, Overland, MO 63114

Subdivision: Winfield Terrace 3

List Price: $175,000

3

Bedrooms

1

Baths

1,536

Area (sq.ft)

$N/A

Cost/sq.ft

1 Story

Type

Description

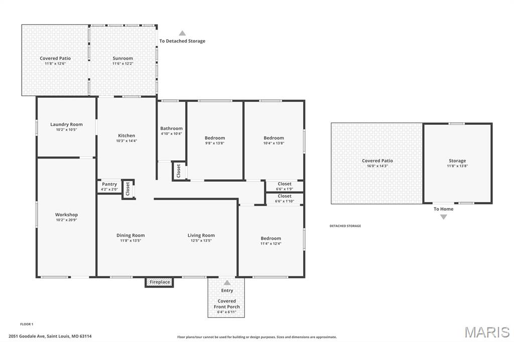
Charming 3-bedroom, zero-step entry, 1-bath home offering comfort, functionality, and extra space to suit a variety of lifestyles. The home features a bright and inviting living area, well-sized bedrooms, and a practical kitchen layout ideal for everyday living. Step outside to a spacious backyard with a large shed—perfect for storage, a workshop, or hobby space. Whether you’re a first-time buyer, downsizing, or looking for a solid investment, this property provides great potential and room to make it your own. Conveniently located and ready to welcome its next owner. Overland occupancy passed! To be sold as-is. Please note -- the roof was replaced after the pictures were taken and it is a brown color. This home is also a slab and does not have a basement.

Property Information

List Price $ 175,000
Original Price $ 175,000
Status Coming Soon
MLS# 26024694
Bedrooms 3
Full baths 1
Half baths 0
Main Floor Full Baths 1
Sq. Ft. Above 1,536
Lot Size 0
Acres 0
Subdivision Winfield Terrace 3
Municipality Overland
School District Ritenour
County St Louis
Property Type Residential
Style 1 Story
Style Description
Transaction Type
Special Conditions Standard
Type
Building Exterior Amenities
Building Style Ranch
Ownership
Special Description Standard
Appliances Some Gas Range,Refrigerator
Miscellaneous
Disclosures Occupancy Permit Required
Age 0
Sewer Main Size Public Sewer
Water Main Size Public
Conditions Occupancy Permit Required

Additional Information

Elementary School Wyland Elem.
Jr. High School Ritenour Middle
Sr. High School Ritenour Sr. High
Association Fee None
Architecture Ranch
Construction Brick
Garage Spaces 0
Carport Spaces 0
Basement Description None
Fireplace Type
Fireplace Location
Lot Dimensions
Special Areas
Cooling Central Air
Sewer Public Sewer Sewer
Heating Radiant
Water Public
Heat Source
Kitchen
Appliances Gas Range,Refrigerator
Dining
Interior Decor
Property Tax $2,250

Map Location

Listing Courtesy of Alexander Realty Inc - [email protected]