Coming Soon MLS# 26024693

3921 Max Weich Place, Florissant, MO 63033

Subdivision: Afshari Estates 13C

List Price: $339,999

3

Bedrooms

3

Baths

1,700

Area (sq.ft)

$N/A

Cost/sq.ft

2 Story

Type

Description

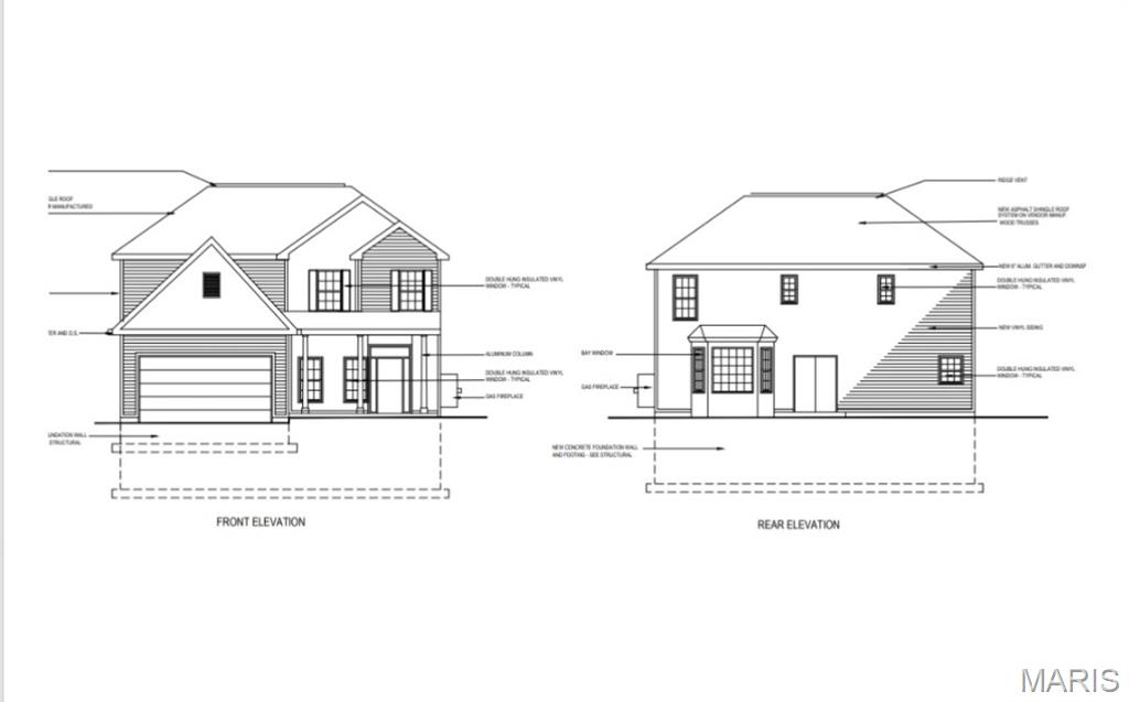
NEW CONSTRUCTION IN FLORISSANT! Be the first to own this beautifully designed Craftsman-style 2-story home featuring 3 bedrooms, 3 bathrooms, and a 2-car garage at 3921 Max Weich Pl. Offering approximately 1,700 sq ft, this home blends modern finishes with timeless design in an area with limited new construction inventory. Designed with entertaining in mind, enjoy luxury vinyl plank flooring, open-concept layout, gas fireplace, and your choice of quartz or granite countertops. Windows throughout the main level, filling the home with natural light. The kitchen features stainless steel appliances, a center island, and a spacious breakfast area with sliding glass doors leading to the backyard. The open-concept living room offers ample space and large windows for a bright, inviting atmosphere. Upstairs, the primary suite includes a walk-in closet and private bath with double sinks, linen closet, and walk-in shower. Two additional bedrooms and a full bath complete the upper level. Additional features include 1st-floor laundry, white two-panel interior doors, powder room, attached 2-car garage, and energy-efficient construction. Builder warranty included for added peace of mind. Still time to choose select finishes! Secure your home early and personalize your space before completion. Contact agent for floor plans, specifications, and site tour.

Property Information

List Price $ 339,999
Original Price $ 339,999
Status Coming Soon
MLS# 26024693
Bedrooms 3
Full baths 2
Half baths 1
Main Floor Full Baths 2
Sq. Ft. Above 1,700
Lot Size 0
Acres 0
Subdivision Afshari Estates 13C
Municipality Florissant
School District Ferguson-Florissant R-II
County St Louis
Property Type Residential
Style 2 Story
Style Description
Transaction Type
Special Conditions Standard
Type
Building Exterior Amenities
Building Style Craftsman
Ownership
Special Description Standard
Appliances Some
Miscellaneous
Disclosures Agent Owned
Age 0
Sewer Main Size Public Sewer
Water Main Size Public
Conditions Agent Owned

Additional Information

Elementary School Commons Lane Elem.
Jr. High School Cross Keys Middle
Sr. High School Mccluer North High
Association Fee None
Architecture Craftsman
Construction Frame,Vinyl Siding
Garage Spaces 2
Carport Spaces 0
Basement Description Full,Unfinished
Fireplace Type
Fireplace Location
Lot Dimensions
Special Areas
Cooling Central Air
Sewer Public Sewer Sewer
Heating Electric
Water Public
Heat Source
Kitchen
Appliances
Dining
Interior Decor
Property Tax $303

Map Location

Listing Courtesy of Guru, REALTORS - [email protected]