Pending MLS# 26022735

1033 Huthmaker Avenue, Kirkwood, MO 63122

Subdivision: Carrington Woods

List Price: $849,900

3

Bedrooms

3

Baths

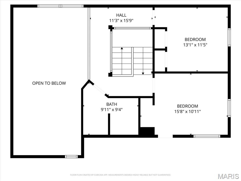
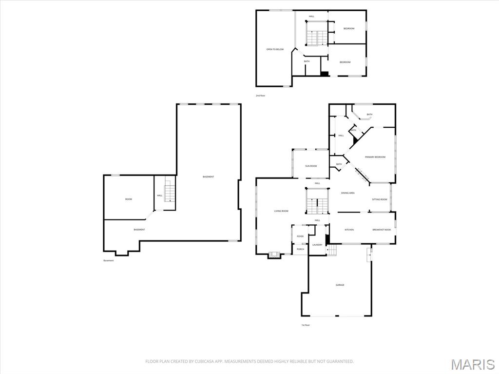
2,501

Area (sq.ft)

$N/A

Cost/sq.ft

1.5 Story

Type

Description

A rare opportunity to own the iconic House of Suites designed home—featured on the cover of Home Magazine, March 1986—where this modern cottage blends architectural significance with elevated everyday living. The current owner has curated this home with exceptional care, sparing no expense in both structural and aesthetic enhancements. Recent improvements include new Hardie board siding, new windows, dual high-efficiency HVAC systems, comprehensive electrical upgrades including wiring and panel, and fully modernized plumbing including new water heater—ensuring the home’s integrity matches its design pedigree. Inside, the architecture unfolds with intention. Vaulted and transverse-vaulted ceilings create dimension and flow, while transom windows invite soft, natural light throughout. A vaulted glass conservatory creates a stunning, light-filled retreat—offering a seamless connection to the surrounding landscape. Glass-enclosed stairs lead to a lofted overlook, enhancing the home’s sense of light, space, and connection. These architectural elements work in harmony to create a home that feels both expansive and intimate. The kitchen has been thoughtfully upgraded with classic shaker-style cabinetry, granite countertops, and premium KitchenAid appliances—offering a perfect balance of durability, function, and timeless appeal. Distinctive elements such as glass block walls—including a lighted pass-through element extending towards the garage—introduces depth, texture, and architectural preservation. A see-through fireplace connects the dining space and primary suite, creating both intimacy and continuity, while a second fireplace anchors the great room as a warm and inviting focal point. This is more than a home—it is a published architectural design, brought forward into today with intention, craftsmanship, and a modern cottage sensibility. A truly rare offering within one of Kirkwood’s most sought-after settings.

Property Information

List Price $ 849,900
Original Price $ 849,900
Status Pending
MLS# 26022735
Bedrooms 3
Full baths 2
Half baths 1
Main Floor Full Baths 2
Sq. Ft. Above 2,501
Lot Size 0
Acres 0
Subdivision Carrington Woods
Municipality Kirkwood
School District Kirkwood R-VII
County St Louis
Property Type Residential
Style 1.5 Story
Style Description
Transaction Type
Special Conditions Standard
Type
Building Exterior Amenities
Building Style Contemporary,Cottage
Ownership
Special Description Standard
Appliances Some Dishwasher,Disposal,Microwave,Electric Range,Refrigerator,Vented Exhaust Fan
Miscellaneous
Disclosures Flood Plain No,Occupancy Permit Required,Seller Property Disclosure
Age 0
Sewer Main Size Public Sewer
Water Main Size Public
Conditions Flood Plain No,Occupancy Permit Required,Seller Property Disclosure

Additional Information

Elementary School George R. Robinson Elem.
Jr. High School Nipher Middle
Sr. High School Kirkwood Sr. High
Association Fee None
Architecture Contemporary,Cottage
Construction HardiPlank Type,Stone
Garage Spaces 2
Carport Spaces 0
Basement Description 8 ft + Pour,Unfinished
Fireplace Type Double Sided,Gas,See Through,Wood Burning
Fireplace Location
Lot Dimensions Irregular
Special Areas
Cooling Central Air,Dual,Electric,Zoned
Sewer Public Sewer Sewer
Heating Forced Air,Natural Gas,Zoned
Water Public
Heat Source
Kitchen
Appliances Dishwasher,Disposal,Microwave,Electric Range,Refrigerator,Vented Exhaust Fan
Dining
Interior Decor
Property Tax $7,519

Map Location

Listing Courtesy of RE/MAX Results - [email protected]