Coming Soon MLS# 26001877

140 Norfork Court, Unincorporated, MO 63341

Subdivision: Callaway Ridge Estate #1

List Price: $765,000

3

Bedrooms

4

Baths

2,541

Area (sq.ft)

$N/A

Cost/sq.ft

1 Story

Type

Description

Experience refined living in this exceptional ranch home nestled in Defiance, within the highly acclaimed Francis Howell Schools. Thoughtfully designed for both elegance & comfort and freshly painted throughout, this residence showcases timeless travertine in the grand foyer & gleaming hardwood floors that flow through a sun-drenched living & dining space with soaring ceilings & a wood-burning fireplace, all framed by expansive windows capturing breathtaking wooded views. The chef’s kitchen is a masterpiece, featuring custom maple cabinetry, wall oven, built-in microwave, island, pantry & a cozy breakfast room ideal for casual gatherings. Just off the kitchen, a powder room & a spacious laundry room add everyday convenience. Escape to your private library, featuring rich coffered ceilings & a wet bar—perfect for evening relaxation, with a nearby powder room for added ease. The main-level primary suite is a true sanctuary with new carpet, motorized shades for effortless light control and privacy, and private access to its own composite deck—perfect for quiet mornings or evening unwinding, along with a luxurious ensuite bath offering a jetted tub, walk-in shower, dual vanities & two walk-in closets, including a cedar closet. The walkout lower level expands your living options with two additional bedrooms, a full bath, a dedicated office & a generous recreation room. Outdoor living is elevated with a brand-new composite deck, stone patio & cozy firepit—all overlooking the tranquil landscape. This extraordinary home, featuring a new roof installed in July ’25 and fresh, move-in-ready interiors, offers an unparalleled blend of luxury, serenity & sophistication. Welcome to your forever retreat!

Property Information

List Price $ 765,000
Original Price $ 765,000
Status Coming Soon
MLS# 26001877
Bedrooms 3
Full baths 2
Half baths 2
Main Floor Full Baths 2
Sq. Ft. Above 2,541
Lot Size 0
Acres 3
Subdivision Callaway Ridge Estate #1
Municipality Unincorporated
School District Francis Howell R-III
County St Charles
Property Type Residential
Style 1 Story
Style Description
Transaction Type
Special Conditions Standard
Type
Building Exterior Amenities None
Building Style Traditional,Ranch
Ownership
Special Description Standard
Appliances Some Stainless Steel Appliance(s),Electric Cooktop,Dishwasher,Disposal,Microwave,Refrigerator,Wall Oven,Warming Drawer,Electric Water Heater,Wine Cooler
Miscellaneous
Disclosures See Seller's Disclosure
Age 0
Sewer Main Size Septic Tank
Water Main Size Public
Conditions See Seller's Disclosure

Additional Information

Elementary School Daniel Boone Elem.
Jr. High School Francis Howell Middle
Sr. High School Francis Howell High
Association Fee $1,050 /Annually
Architecture Traditional,Ranch
Construction Brick,Stone,Vinyl Siding
Garage Spaces 3
Carport Spaces 0
Basement Description 9 ft + Pour,Bathroom,Egress Window,Full,Partially Finished,Concrete,Walk-Out Access
Fireplace Type Masonry,Wood Burning,Living Room
Fireplace Location
Lot Dimensions 0
Special Areas
Cooling Central Air,Electric
Sewer Septic Tank Sewer
Heating Forced Air,Electric
Water Public
Heat Source
Kitchen
Appliances Stainless Steel Appliance(s),Electric Cooktop,Dishwasher,Disposal,Microwave,Refrigerator,Wall Oven,Warming Drawer,Electric Water Heater,Wine Cooler
Dining
Interior Decor Custom Cabinetry,Dining/Living Room Combo,Entrance Foyer,Granite Counters,High Speed Internet,Kitchen Island,Pantry,Solid Surface Countertop(s),Special Millwork,Tub,Vaulted Ceiling(s),Walk-In Closet(s)
Property Tax $7,856

Map Location

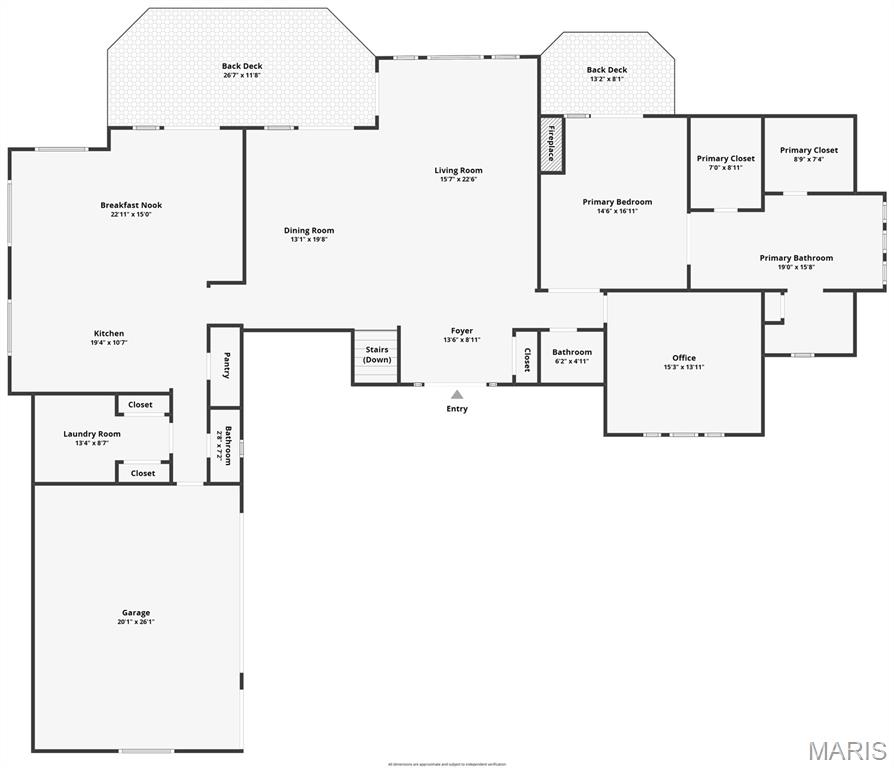
Room Dimensions

Room Dimensions (sq.rt)
Great Room (Level-Main) 23 x 16
Dining Room (Level-Main) 20 x 13
Breakfast Room (Level-Main) 24 x 15
Kitchen (Level-Main) 11 x 17
Laundry (Level-Main) 13 x 9
Primary Bedroom (Level-Main) 14 x 17
Primary Bathroom (Level-Main) 19 x 15
Library (Level-Main) 15 x 14
Bedroom (Level-Lower) 14 x 16
Bedroom (Level-Lower) 16 x 16
Office (Level-Lower) 15 x 13
Recreation Room (Level-Lower) 32 x 18
Bathroom (Level-Lower) 6 x 7
Bathroom (Level-Main) N/A
Bathroom (Level-Main) N/A

Listing Courtesy of Keller Williams Realty West - kwbrokerdesk@gmail.com