Coming Soon MLS# 26001501 Open House Jan 25th, 12:00 PM To 2:00 PM

1215 Kostka Lane, Florissant, MO 63031

Subdivision: De Smet 5

List Price: $239,900

3

Bedrooms

3

Baths

1,437

Area (sq.ft)

$N/A

Cost/sq.ft

1 Story

Type

Description

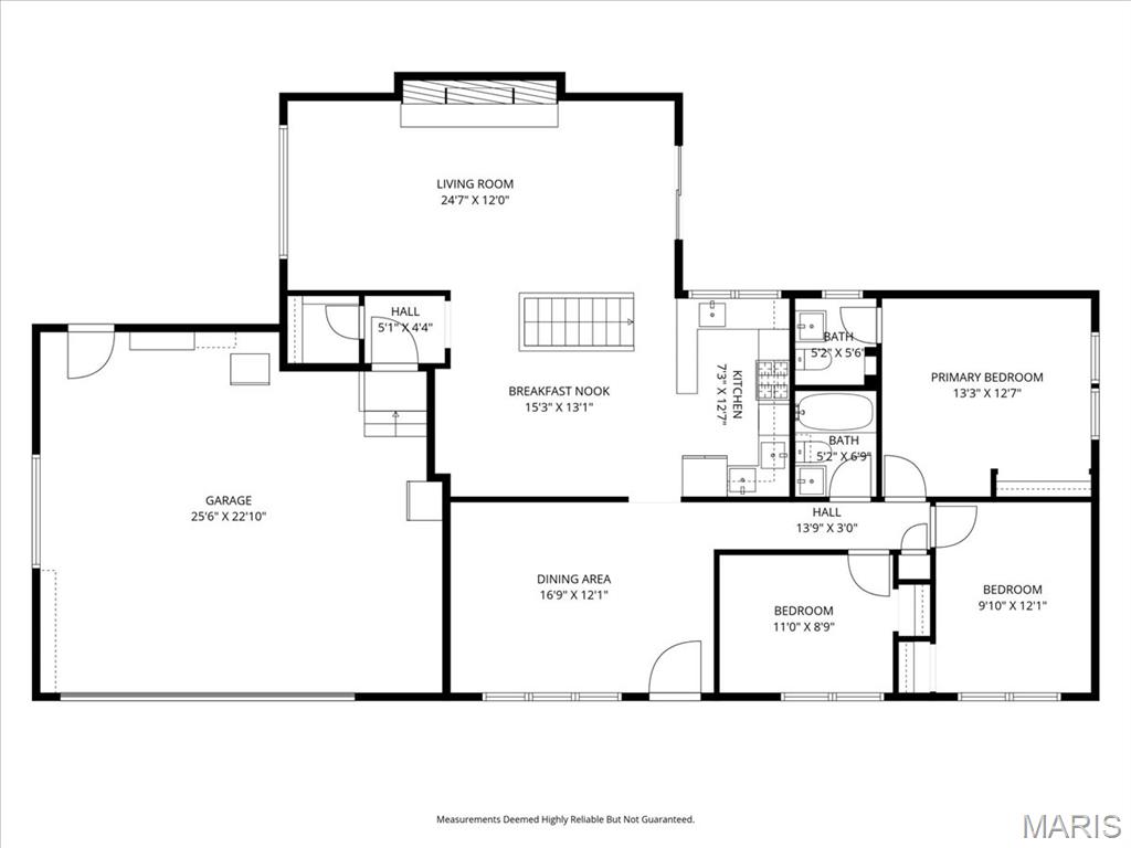
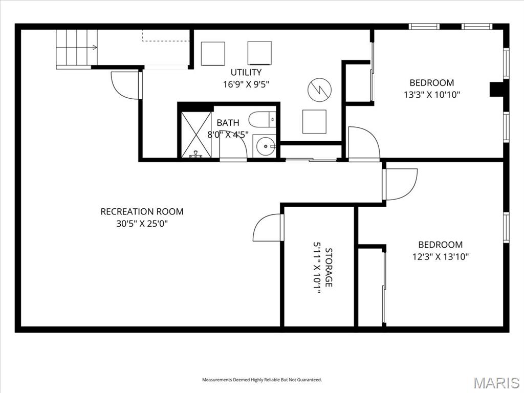
Welcome to 1215 Kostka Lane! This adorable house at the end of the street has been lovingly updated and ready for you to call home. The main level has vinyl plank flooring throughout. Walk into the front room that can be used as formal dining or a living room. The kitchen has stainless steel dishwasher & refrigerator; a double wall oven and counter stove top and extra cabinets for all your needs. The kitchen is open to the breakfast nook with a lighted alcove. This area is also open to the large family room with lots of windows for all that natural light and complimented with a large stone, gas fireplace to keep you cozy in the winter. Sliding doors off the living room open to the deck for you to relax in your backyard enclosed by the privacy fence. The primary bedroom has a updated half bath. The main level full bath has also been updated. The two other main floor bedrooms provide plenty of space for whatever your needs. As if this wasn't enough to entice you, the lower level has vinyl tile throughout the finished spaces that include a large rec room, two bonus rooms, an unfinished storage room, laundry/utility room and a full bath with shower. You can skip the gym membership this year if you like and include the exercise equipment in the lower level. Everything you need is already here! Showings begin Sunday 01/25/2026. Don't miss your chance to own this gem at the end of the street.

Property Information

List Price $ 239,900
Original Price $ 239,900
Status Coming Soon
MLS# 26001501
Bedrooms 3
Full baths 2
Half baths 1
Main Floor Full Baths 2
Sq. Ft. Above 1,437
Lot Size 0
Acres 0
Subdivision De Smet 5
Municipality Florissant
School District Hazelwood
County St Louis
Property Type Residential
Style 1 Story
Style Description
Transaction Type
Special Conditions Standard
Type
Building Exterior Amenities
Building Style Ranch
Ownership Private
Special Description Standard
Appliances Some Gas Cooktop,Dishwasher,Humidifier,Microwave,Double Oven,Refrigerator,Wall Oven,Gas Water Heater
Miscellaneous
Disclosures Lead Paint,Occupancy Permit Required,See Seller's Disclosure
Age 0
Sewer Main Size Public Sewer
Water Main Size Public
Conditions Lead Paint,Occupancy Permit Required,See Seller's Disclosure

Additional Information

Elementary School Mcnair Elem.
Jr. High School West Middle
Sr. High School Hazelwood West High
Association Fee None
Architecture Ranch
Construction Brick Veneer,Vinyl Siding
Garage Spaces 2
Carport Spaces 0
Basement Description Bathroom,Partially Finished,Full,Other,Storage Space
Fireplace Type Family Room,Gas
Fireplace Location
Lot Dimensions
Special Areas
Cooling Attic Fan,Ceiling Fan(s),Central Air
Sewer Public Sewer Sewer
Heating Forced Air,Natural Gas
Water Public
Heat Source
Kitchen
Appliances Gas Cooktop,Dishwasher,Humidifier,Microwave,Double Oven,Refrigerator,Wall Oven,Gas Water Heater
Dining
Interior Decor Ceiling Fan(s),Crown Molding,Kitchen/Dining Room Combo,Open Floorplan
Property Tax $3,179

Map Location

Room Dimensions

Room Dimensions (sq.rt)
Living Room (Level-Main) 24 x 12
Kitchen (Level-Main) 7 x 13
Bathroom (Level-Main) N/A
Primary Bedroom (Level-Main) 13 x 13
Primary Bathroom (Level-Main) 5 x 6
Bedroom 2 (Level-Main) 11 x 9
Bedroom 3 (Level-Main) 10 x 12
Bonus Room (Level-Basement) 12 x 13
Recreation Room (Level-Basement) 31 x 25
Storage (Level-Basement) 5 x 10
Utility Room (Level-Basement) 17 x 10
Bonus Room (Level-Basement) 13 x 10
Bathroom (Level-Basement) 8 x 5
Dining Room (Level-Main) 17 x 12

Listing Courtesy of BHHS Select Properties - khamptonhayden@bhhsselectstl.com