Coming Soon MLS# 25082474

13 Chamberlain Court, Belleville, IL 62223

Subdivision: Pinecrest Sub

List Price: $169,900

2

Bedrooms

1

Baths

1,110

Area (sq.ft)

$N/A

Cost/sq.ft

1 Story

Type

Description

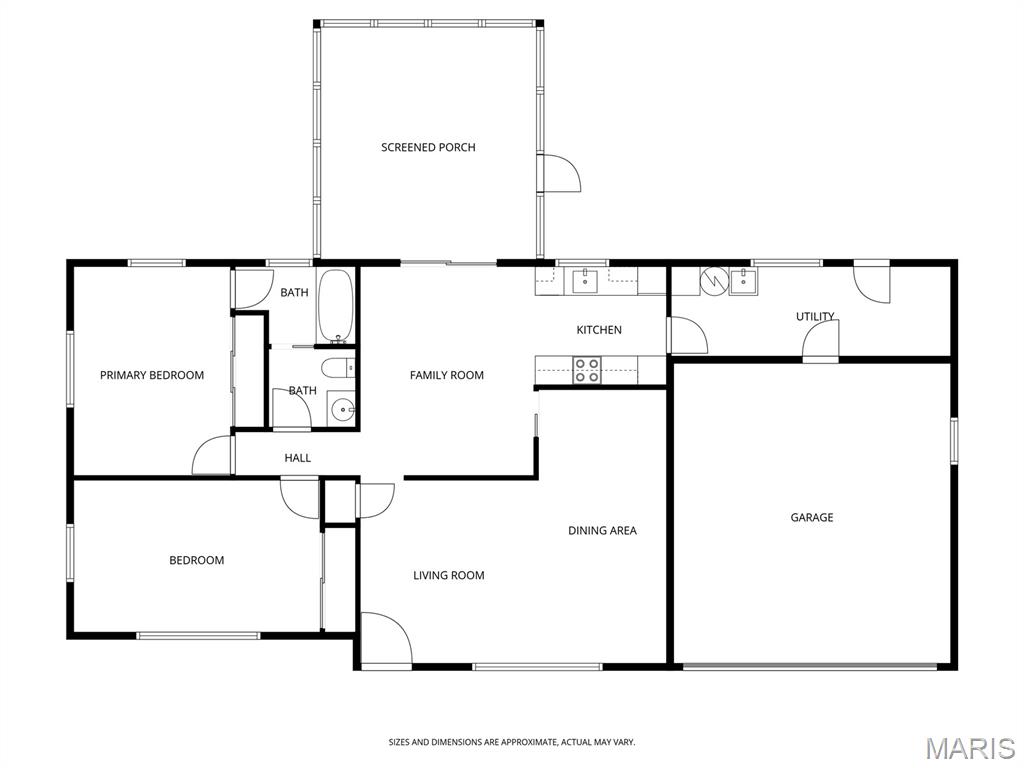
Welcome to this inviting home on a quiet street in the desirable Ogles Subdivision. As you enter, you’re welcomed by a spacious living room, offering a comfortable space for relaxing or entertaining. Just off the living room is a dedicated dining area conveniently located beside the kitchen, creating an easy flow for everyday meals and gatherings. The kitchen features ample cabinetry and granite countertops and is centrally positioned for both function and convenience. From the dining area you have access to the screened sun porch, which leads to the backyard, perfect for enjoying outdoor time or hosting get-togethers. Bedrooms are situated along a private hallway with convenient access to the full bath. Both bedrooms include built-in closets for storage. Additional features include a utility room located near the kitchen with access to the garage, plus a 2 car garage offering parking and extra storage. Comfort, charm, and functionality come together in this lovely home You don’t miss your opportunity to make it yours!

Property Information

List Price $ 169,900
Original Price $ 169,900
Status Coming Soon
MLS# 25082474
Bedrooms 2
Full baths 1
Half baths 0
Main Floor Full Baths 1
Sq. Ft. Above 1,110
Lot Size 0
Acres 0
Subdivision Pinecrest Sub
Municipality
School District Harmony Emge DIST 175
County St Clair-IL
Property Type Residential
Style 1 Story
Style Description
Transaction Type
Special Conditions Standard
Type
Building Exterior Amenities
Building Style Contemporary,Ranch
Ownership
Special Description Standard
Appliances Some Dishwasher,Microwave,Refrigerator,Washer
Miscellaneous
Disclosures Lead Paint,Seller Property Disclosure
Age 0
Sewer Main Size Public Sewer
Water Main Size Public
Conditions Lead Paint,Seller Property Disclosure

Additional Information

Elementary School HARMONY EMGE DIST 175
Jr. High School Harmony Emge DIST 175
Sr. High School Belleville High School-West
Association Fee None
Architecture Contemporary,Ranch
Construction Brick Veneer
Garage Spaces 2
Carport Spaces 0
Basement Description
Fireplace Type
Fireplace Location
Lot Dimensions 86x138x100x135
Special Areas
Cooling Central Air,Electric
Sewer Public Sewer Sewer
Heating Forced Air,Natural Gas
Water Public
Heat Source
Kitchen
Appliances Dishwasher,Microwave,Refrigerator,Washer
Dining
Interior Decor
Property Tax $4,372

Map Location

Room Dimensions

Room Dimensions (sq.rt)
Dining Room (Level-Main) 12 x 14
Living Room (Level-Main) 21 x 12
Bedroom (Level-Main) 17 x 10
Bedroom 2 (Level-Main) 14 x 11
Bathroom (Level-Main) 10 x 12
Utility Room (Level-Main) 19 x 6
Bonus Room (Level-Main) 9 x 8

Listing Courtesy of Keller Williams Marquee - [email protected]